物件詳細
売買>一戸建を検索します
![]() 小売店やオフィスにおすすめ!住居スペース有りです。 |
お問い合わせ歓迎!![]() |
||
| 地区 | 魚津市 | ||
|---|---|---|---|
| 所在地 | 金浦町 | » 周辺マップをみる | |
|
![]() |
||
内観![]() |
内観![]() 1階事務所内観 |
内観![]() 事務所玄関ホール |
内観![]() 事務所給湯室 |
内観![]() 事務所トイレ |
内観![]() 事務所トイレ内 |
内観![]() 2階洋間 |
内観![]() 2階洋間収納 |
内観![]() 2階浴室 |
周辺![]() 事務所前外観 |
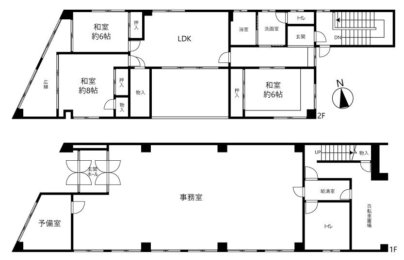
| 間 取 | 3LDK | 間取内訳 | 1階事務所、2階6帖、8帖、6帖、台所ダイニング |
|---|---|---|---|
| 価 格 | 1,398万円 | ||
| 土地面積 | 264.56m² | 土地坪数 | 80.02坪 |
| 建物面積 | 248.12m² | 建物坪数 | 75.05坪 |
| 建物構造 | RC(鉄筋)造 | 建物階数 | 2階建 |
| 築年月 | S54年12月 | 入居時期 | 即日可 |
| 建ぺい率 | 80% | 容積率 | 300% |
| 用途地域 | 近隣商業地域 | 地 目 | 宅地 |
| 交通手段 | 地鉄電車 電鉄魚津駅 徒歩8分 | 駐車スペース | |
| 小学校区 | よつば小学校 | 中学校区 | 西部中学校 |
| 融雪装置 | 有 | - | |
| 玄関の方角 | 東 | 上水道 | 有 |
| ガ ス | トイレ | 下水道 | |
| 取引態様 | 仲介 | 備 考 | |
| 設備・条件 | |||
お問い合わせ先
物件コード:455926032751
携帯からもこの物件を閲覧できます
下記のQRコードからアクセス下さい
- (株)ABC 不動産部
-

- 富山県知事免許(4)第2749号
- TEL : 076-423-3383
FAX : 076-423-3386 - URL : http://www.abc-e.jp
※「住まいネットを見て」とお問い合わせください。スムーズに話が通ります。


















