物件詳細
売買>一戸建を検索します
![]() 富山地方鉄道立山線「稚子塚駅」まで徒歩約200m! |
お問い合わせ歓迎!![]() |
||
| 地区 | 立山町 | ||
|---|---|---|---|
| 所在地 | 立山町浦田 | » 周辺マップをみる | |
|
![]() |
||
リビング![]() |
内観![]() |
内観![]() |
内観![]() |
内観![]() |
内観![]() |
内観![]() |
その他![]() |
内観![]() |
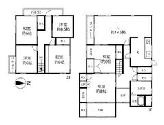
| 間 取 | 6LDK | 間取内訳 | 和室8帖、和室6帖、LDK13.5帖、洋室6帖、和室6帖、和室6帖、物置洋室 |
|---|---|---|---|
| 価 格 | 1,080万円 | ||
| 土地面積 | 241.75m² | 土地坪数 | 73.12坪 |
| 建物面積 | 141.39m² | 建物坪数 | 42.77坪 |
| 建物構造 | 木造 | 建物階数 | 2階建 |
| 築年月 | S62年7月 | 入居時期 | 即日可 |
| 建ぺい率 | 70% | 容積率 | 200% |
| 用途地域 | 無指定地域 | 地 目 | 宅地 |
| 交通手段 | 地鉄電車 稚子塚駅 徒歩2分 | 駐車スペース | 有 |
| 小学校区 | 立山北部小学校 | 中学校区 | 雄山中学校 |
| 融雪装置 | 無 | - | |
| 玄関の方角 | 上水道 | 引き込み有 | |
| ガ ス | トイレ | 下水道 | |
| 取引態様 | 仲介 | 備 考 | 前面道路の幅員が4m未満のため、セットバックが必要です。 |
| 設備・条件 | |||
お問い合わせ先
物件コード:455925121651
携帯からもこの物件を閲覧できます
下記のQRコードからアクセス下さい
- (株)ABC 不動産部
-

- 富山県知事免許(4)第2749号
- TEL : 076-423-3383
FAX : 076-423-3386 - URL : http://www.abc-e.jp
※「住まいネットを見て」とお問い合わせください。スムーズに話が通ります。

















